Passer au contenu principal
Nom d’utilisateur
Mot de passe
Connexion
Nom d’utilisateur ou mot de passe oublié ?
usmt
📅 Moodle par année
Consultez les cours de l'année académique 2025/2026
Consultez les cours de l'année académique 2024/2025
Consultez les cours de l'année académique 2023/2024
CILT
Français (fr)
English (en)
Français (fr)
العربية (ar)
بالعربي workplace (ar_wp)
Rechercher des cours
Envoyer
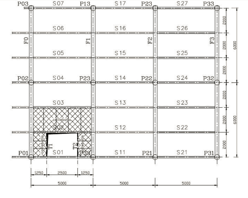
Charpente métallique
TD Etude d'un plancher
Modifié le: dimanche 10 novembre 2024, 18:24
◄ TD Vérification PRS
Aller à…
Aller à…
Annonces
Correction
TD n°01 Traction
TD n°02 Traction
TD n°03 Traction
Fiche TD Flexion
TD Vérification PRS
TD Porte à faux -Interaction M-V
TD Classe 4
TD Classe 2 équivalente
TD Porte à faux -Interaction M-V ►
Retour